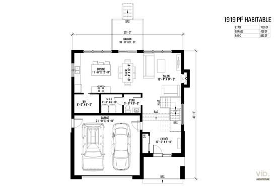
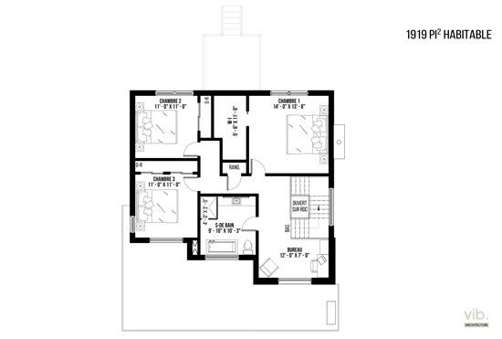
Plan de maison à étages à vendre - MODÈLE V-172-D
Le plan V-172-D a été conçu pour être abordable, la simplicité de sa construction, bâtiment rectangulaire, toiture simple, rend sa construction plus économique. Le bureau de l’étage peut être transformé selon vos besoins. Les fenêtres dans l’escalier éclairent les parties communes de tous les étages. Ce plan a été conçu avec plusieurs façades, vous permettant de choisir celle qui vous ressemble le plus.
SUPERFICIES
Rez-de-chaussée :
880 pi2
Étage : 1039 pi2
Garage :
436 pi2
Sous-sol :
880 pi2
Total habitable : 1919 pi2
SPÉCIFICATIONS
Chambre(s) :
3 à 5
Salle(s) de bain :
3
Salon(s) :
1 à 2
PLAFONDS
Rez-de-chaussée :
9 pi
Étage : 8 pi
Garage :
11 pi
Sous-sol :
8 pi
PRIX
Le prix de base du plan est de 2000$.
Des options et modifications sont possibles.





